欢迎您来到甘肃快盈石材有限公司官方网站,主要生产兰州大理石,花岗岩,人造岗石,人造石英石,石球及桥栏杆的批发生产加工。

您当前的位置 : 首 页 > 新闻资讯 > 技术资讯

悬浮大理石楼梯!

2022-04-11

悬浮大理石楼梯的制作过程!


甘肃兰州各种花岗岩 路道牙花岗岩厂家 甘肃兰州各种大理石 人造石 石英石 岗石厂家


甘肃兰州各种花岗岩 路道牙花岗岩厂家 甘肃兰州各种大理石 人造石 石英石 岗石厂家


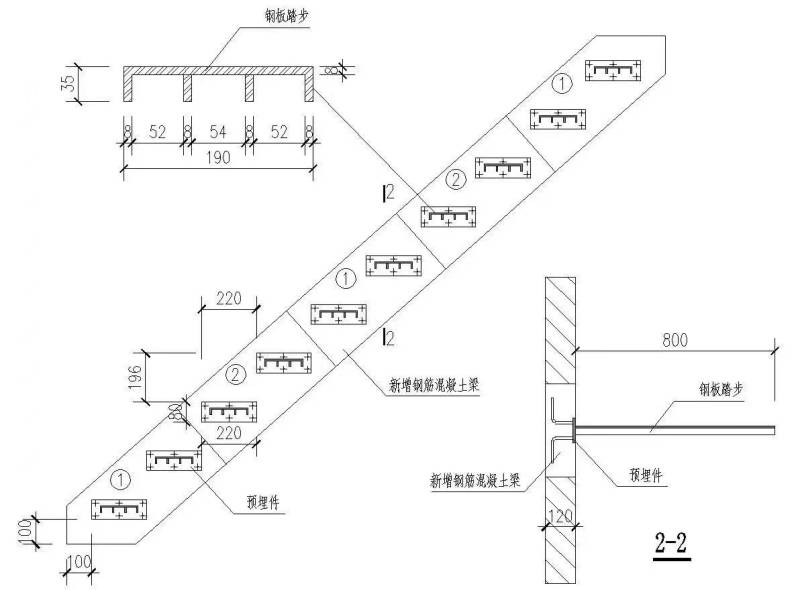
       悬浮式楼梯悬浮楼梯因造型时尚简约、节省空间等特点吸引了一大波关注。它极简,没有多余的线条;又打破了楼梯固有的自下而上的认知,直接从侧墙面延伸出来。


       悬浮式楼梯把整个楼梯悬在半空,让楼梯宛如一件精致的艺术品,轻盈的结构,既能节省空间,还能起到装饰作用。


甘肃兰州各种花岗岩 路道牙花岗岩厂家 甘肃兰州各种大理石 人造石 石英石 岗石厂家


       很多人看了心里发毛,没安全感,容易撞到头,小孩和老人有掉下去的危险。因此设计师大多会在楼梯的另一侧用钢丝绳或玻璃来做围挡,加强业主的安全感。


甘肃兰州各种花岗岩 路道牙花岗岩厂家 甘肃兰州各种大理石 人造石 石英石 岗石厂家


       悬浮楼梯的制作流程大概分为

选墙——测量——开槽——装骨架——填补找平

       首先,选择一面结石的墙要是钢筋混泥土剪力墙,足够承重。测量出要做楼梯部分的高度,计算出楼梯的步数。一般楼梯两阶之间的踢面高度取14~17.5cm,宽度一般在26.5~30cm之间。每各楼梯踏步可以交叠3~5cm左右,使用起来会更安心一点点。计算出楼梯步数之后,就可以按照计算把每一步的位置画在墙上。接下来就是安装楼梯骨架了。





甘肃兰州各种花岗岩 路道牙花岗岩厂家 甘肃兰州各种大理石 人造石 石英石 岗石厂家


       悬浮楼梯真正受力部分是在墙身。

所以墙内的预埋件的面积一定要大,伸出的结构一定要够强。


甘肃兰州各种花岗岩 路道牙花岗岩厂家 甘肃兰州各种大理石 人造石 石英石 岗石厂家


         —甘肃快盈石材有限公司—


标签

本文网址:/news/908.html

最近浏览:

甘公网安备 62012302000158号