欢迎您来到甘肃快盈石材有限公司官方网站,主要生产兰州大理石,花岗岩,人造岗石,人造石英石,石球及桥栏杆的批发生产加工。

您当前的位置 : 首 页 > 新闻资讯 > 公司新闻

家装的洗手盆 窗台石 门槛石

2022-06-09

家装的洗手盆 窗台石 门槛石

甘肃兰州各种花岗岩 路道牙花岗岩厂家 甘肃兰州各种大理石 人造石 石英石 岗石厂家


洗手台面石、 窗台石测量方式

一、 非标洗手台面积=台面实际投影面积+挡水石面积+裙边面积

1、 非标台下盆洗手台面积

甘肃兰州各种花岗岩 路道牙花岗岩厂家 甘肃兰州各种大理石 人造石 石英石 岗石厂家 

台面石面积=A*B+(A+B)*H+(D1+D2)*C

2、 非标台上盆洗手台面积

 甘肃兰州各种花岗岩 路道牙花岗岩厂家 甘肃兰州各种大理石 人造石 石英石 岗石厂家

台面石面积=A*B+(A+B)*H+(D1+D2)*C

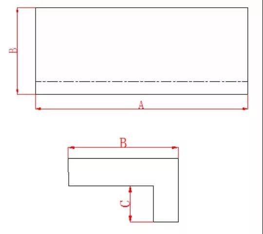
3、“L” 型非标洗手台面积

甘肃兰州各种花岗岩 路道牙花岗岩厂家 甘肃兰州各种大理石 人造石 石英石 岗石厂家 

台面石面积=A1*B+A2*B2+(A1+B1+A2)*H+(DI+D2)*C

二、 非标窗台石面积=台面石实际投影面积+下档水沿面积

磨边长度=下挡水沿长度

1、“一” 字型窗台石面积

 甘肃兰州各种花岗岩 路道牙花岗岩厂家 甘肃兰州各种大理石 人造石 石英石 岗石厂家


窗台石面积=A*C+D*E*2+B*H 磨边长度=B

 甘肃兰州各种花岗岩 路道牙花岗岩厂家 甘肃兰州各种大理石 人造石 石英石 岗石厂家

2、“L” 字型窗台石面积

 甘肃兰州各种花岗岩 路道牙花岗岩厂家 甘肃兰州各种大理石 人造石 石英石 岗石厂家

窗台石面积=A*B1+D*B2+F*G*2+(C+E)*H 磨边长度=C+E

3、“八卦” 型窗台石面积

 甘肃兰州各种花岗岩 路道牙花岗岩厂家 甘肃兰州各种大理石 人造石 石英石 岗石厂家

窗台石面积=(A+E)*D/2+(B+F)*D/2+(C+G)*D/2+(E+F+G)*H 磨边长度=E+F+G

三、 非标门槛石面积=门槛石实际投影面积+加厚边面积

1、 无加厚边门槛石面积

甘肃兰州各种花岗岩 路道牙花岗岩厂家 甘肃兰州各种大理石 人造石 石英石 岗石厂家

门槛石面积=A*B

2、 有加厚边门槛石面积

甘肃兰州各种花岗岩 路道牙花岗岩厂家 甘肃兰州各种大理石 人造石 石英石 岗石厂家

门槛石面积=A*B+A*C

      

                  安装案例图片

甘肃兰州各种花岗岩 路道牙花岗岩厂家 甘肃兰州各种大理石 人造石 石英石 岗石厂家


甘肃兰州各种花岗岩 路道牙花岗岩厂家 甘肃兰州各种大理石 人造石 石英石 岗石厂家

甘肃兰州各种花岗岩 路道牙花岗岩厂家 甘肃兰州各种大理石 人造石 石英石 岗石厂家

甘肃兰州各种花岗岩 路道牙花岗岩厂家 甘肃兰州各种大理石 人造石 石英石 岗石厂家

甘肃兰州各种花岗岩 路道牙花岗岩厂家 甘肃兰州各种大理石 人造石 石英石 岗石厂家


      ——甘肃快盈石材有限公司——



标签

本文网址:/news/928.html
上一篇:外墙干挂石材的施工质量2022-06-08
下一篇:唐山市委市政府决定2022-06-13

最近浏览:

甘公网安备 62012302000158号